Wiring Layout Diagram – Master Your Electrical System Better with a Detailed Wiring Diagram
Whether you’re involved in a house renovation or repairing your car, having a easy-to-read wiringdiagram is essential. It helps you see how electrical components are linked and ensures a risk-free, efficient setup.
Whether you’re a small business owner, payroll manager, or sole proprietor, using aprintable payroll template helps ensure accurate record-keeping. Simply access the template, produce a hard copy, and fill it out by hand or type directly into the file before printing.
A electrical schematic visually represents wiring systems, showing the paths for current flow and how different components like switches, plugs, protective devices, and connectors interact. This makes it easier to troubleshoot issues, improve installations, or install new systems without confusion.
Wiring Layout Diagram
Many online platforms offer complimentary or customizable wiringdiagram templates for automobiles, home appliances, LED setups, and more. These diagrams are particularly helpful for hobbyists, electricians, and engineers who need trustworthy references.
By using a proper wiring diagram, you avoid faults, increase efficiency, and ensure all projects is in compliance. Don’t start your next repair blindly—search for a trusted wiring diagrams and design with clarity today!
Get and Print Wiring Layout Diagram
Understanding Electrical Wiring Layout Diagrams
CCTV Camera Wiring Diagram And Connection For Installation With NVR
Wiring Layout Diagram
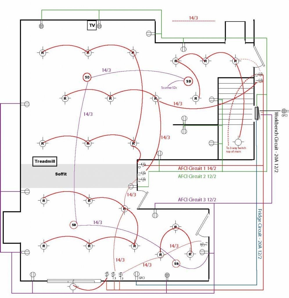
When it comes to electrical projects, having a clear and organized wiring layout diagram is essential. This diagram serves as a roadmap for electricians to follow during installation and repairs, ensuring that everything is connected correctly and safely. Without a proper wiring layout diagram, the risk of errors and accidents increases significantly.
A wiring layout diagram is a visual representation of the electrical connections within a system or building. It shows how wires are interconnected and where they need to be routed to ensure proper functioning of the electrical components. This diagram is typically created using symbols and color codes to make it easier to understand and interpret.
In a wiring layout diagram, each component is represented by a specific symbol, such as a resistor or a switch. The wires connecting these components are also shown, along with any junctions or terminals where they meet. By following the diagram, electricians can easily identify the connections that need to be made and troubleshoot any issues that may arise during the installation process.
One of the key benefits of having a wiring layout diagram is that it helps prevent mistakes and confusion during the wiring process. By having a clear visual guide to refer to, electricians can ensure that each wire is connected to the right terminal and that all connections are secure. This not only saves time and effort but also reduces the risk of electrical malfunctions or fires caused by faulty wiring.
Additionally, a wiring layout diagram can be a valuable tool for future reference and maintenance. If any repairs or upgrades need to be made to the electrical system, having a detailed diagram can make the process much easier and more efficient. It can also help new electricians or technicians understand the layout of the system and troubleshoot any issues that may arise.
In conclusion, a wiring layout diagram is a crucial component of any electrical project. By providing a clear visual representation of the electrical connections, it ensures that the wiring is done correctly and safely. Whether for installation, repairs, or maintenance, having a well-designed wiring layout diagram can make the job much easier and help prevent costly mistakes.



